MIETEN    KAUFEN   Schnellsuche
 

 

Wunderschöne Villa in der Fußgängerzone - Renovierte und helle 3 Zimmer-Wohnung mit Einbauküche in einer modernen Altstadtvilla

mitten in der Innenstadt von Bad Oeynhausen

 
980,00 €
Kaltmiete zzgl. Nebenkosten
Anfragen





Zurück
Teilen  
Expose-ID K3280
Wohnfläche 115,00 m²
Räume 3
Baujahr 1900
Nebenkosten 350,00 €

 

Objekt-Beschreibung

Wunderschöne Villa in der Fußgängerzone
Renovierte und helle 3 Zimmer-Wohnung mit Einbauküche in einer modernen Altstadtvilla mitten in der Innenstadt von Bad Oeynhausen

Baujahr:   
Wunderschöne Villa von ca. 1850, laufend modernisiert und renoviert. 

Nutzfläche:     
Ca. 115 m² im 2. Obergeschoss und Dachgeschoss in einer Villa mit 3 Mietwohnungen und 2 Gewerbeeinheiten im EG. 
 
1 eigener Kellerraum. Gemeinschaftlicher Waschkeller. 
1 Stellplatz vor dem Haus. Ein öffentliches Parkhaus ist nur wenige Gehminuten entfernt.

Aufteilung:   
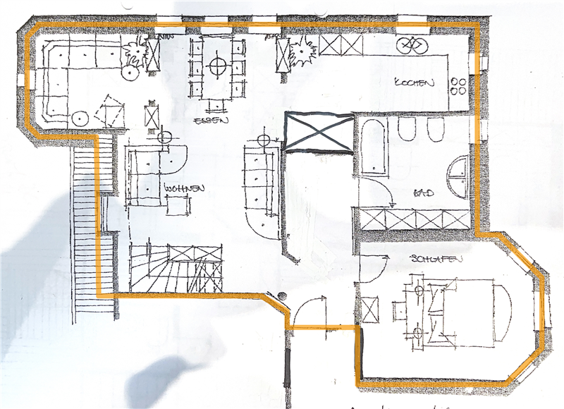
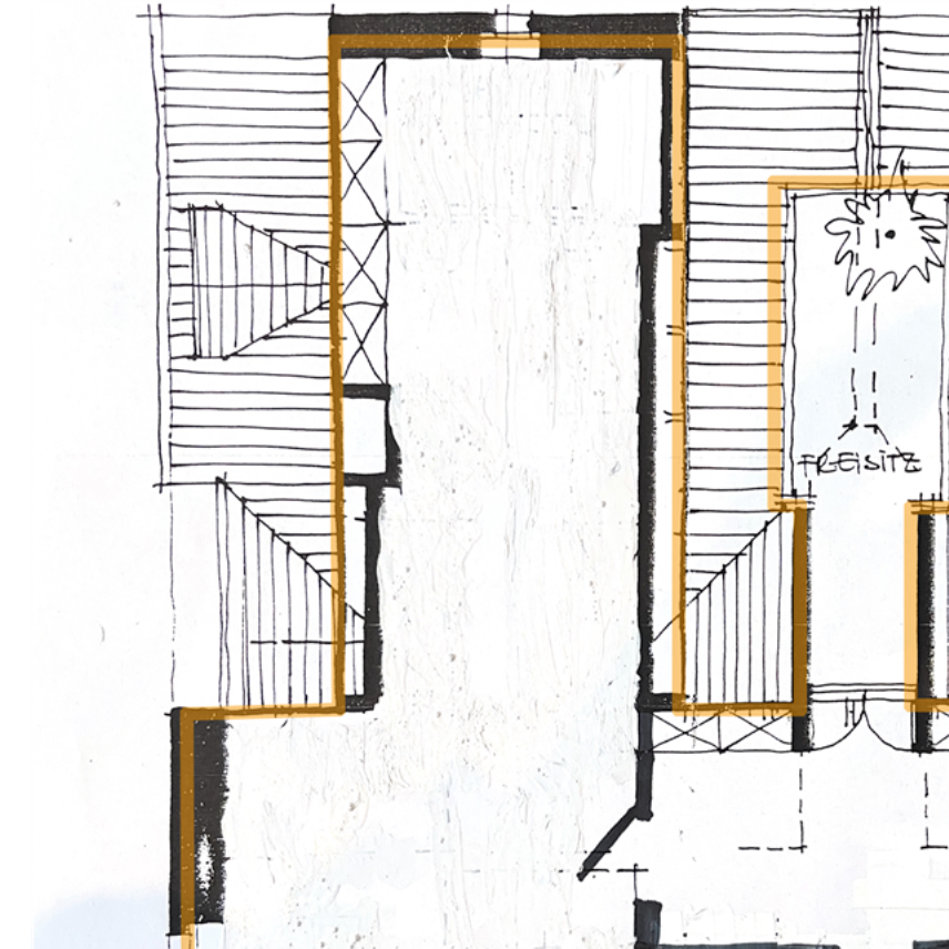
Eingangsbereich mit Garderobe, Bad, Schlafbereich, großes und helles Wohn-/Esszimmer mit offener Küche, Lesebereich und Zugang zum Dachgeschoss über eine offene Holztreppe. Im Dachgeschoss befinden sich ein heller offener Arbeitsbereich/Jugendzimmer, ein Bad mit Eckduschwanne und ein kleiner Flur mit Zugang zur Dachterrasse (Ausrichtung Süd/Ost). 


INFO:
Bevor wir Ihnen das ausführliche Exposé zusenden können, prüfen wir Ihre Angaben. 

Bitte haben Sie Verständnis, dass wir aufgrund der hohen Nachfrage, nur passende und vollständig ausgefüllte Anfragen beantworten können.

Bitte teilen Sie uns daher unbedingt folgende Angaben zu Ihrer Person mit: Aktuelle Anschrift, Haushaltsgröße (Personenanzahl), gibt es Tiere im Haushalt, Anstellungsverhältnis (Beruf), monatliches Haushaltsnettoeinkommen. 

Nach Sichtung Ihrer Daten erhalten Sie unser Exposé in Kürze.

Sollten Sie unser Exposé nicht erhalten, könnte dies folgende Gründe haben:

- Die Immobilie ist bereits vermittelt 
- Durch die hohe Nachfrage können wir keine weiteren Termine am Objekt anbieten 
- Ihre angegebene Personenanzahl ist aufgrund der Aufteilung und Größe der Immobilie nicht passend


Ausstattung

Gasheizung mit Warmwasseraufbereitung, separate Zähler. Holzfenster mit Isolierverglasung. Bad im 2. OG mit Duschwanne, Doppelwaschbecken, WC und Fenster, Bad im Dachgeschoss mit Duscheckwanne, Waschbecken, Spiegelschrank, WC und Dachflächenfenster (Bäder mit neuen WCs und neuen Armaturen).

Vinylbelag in Holzoptik im Wohn- und Schlafbereich, Dachgeschoss mit neuem Teppichboden, Bäder mit Bodenfliesen. Wände und Decken neu weiß gestrichen. 

Große Einbauküche mit E-Geräten.
Kabel-TV möglich.

Sonstiges:   
Tierhaltung ist leider nicht möglich. Diese Wohnung ist aufgrund der Größe und Aufteilung optimal für 2-3 Personen geeignet. 
Energieverbrauchskennwert: 133,8 kWh/(m²a). 

Übernahme:     
Kurzfristiger Bezug möglich.

Kaltmiete:   
€ 980 inkl. Einbauküche und Stellplatz.

Nebenkosten:   
Ca. € 350 monatliche Nebenkostenvorauszahlung für Heizung und Warmwasser, Wasser, Abwasser, Niederschlagswasser, Abfallbeseitigung, Grundsteuer, Versicherung, Schornsteinfeger, Wartung Rauchmelder, Garantie der Küchengeräte, Treppenhausreinigung und Gartenpflege.

Die Kosten für Strom sind direkt mit dem zuständigen Versorgungsunternehmen abzurechnen.

Kaution:   
3 Netto-Monatsmieten.

Anmerkung:   
Alle Angaben erfolgen durch den Vermieter, für die Richtigkeit und Vollständigkeit übernehmen wir keine Haftung. Bei den Flächenangaben handelt es sich um ca. Angaben. Irrtümer und Auslassungen bleiben vorbehalten. Die möblierten dargestellten Bilder (Wohnzimmer, Schlafzimmer, Bad) sind digitale, KI-gestützte Visualisierungen. Sie dienen ausschließlich der beispielhaften Darstellung möglicher Einrichtungsideen und sind nicht verbindlich. Maßgeblich ist der tatsächliche Zustand der Immobilie vor Ort.


Kurzfristiger Bezug möglich.

Beschreibung der Lage

Im Herzen der Bad Oeynhausener Innenstadt. Kurpark, Oeynhausener-Schweiz, Apotheken, Ärzte, Bäcker, Banken, Bahnhof, Busbahnhof, Cafés und Restaurants: alles nur ein paar Fußminuten entfernt. 

Maklerprovision

Keine.

Energiepass

133,8 kWh/(m²a)